メゾン・ド・タンブール
区分マンション
閲覧済み
本町5丁目 西新宿五丁目駅 徒歩 10分 1240万円 想定利回り(表面)5.8%
- おすすめ
- NEW
- 価格変更
- 会員限定
所在地
東京都渋谷区本町5丁目交通
都営大江戸線 西新宿五丁目駅 徒歩 10分間取り
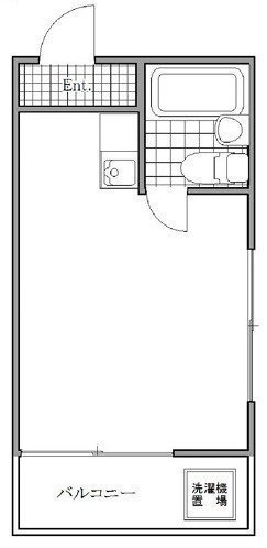
1R築年月
1983年03月完成専有面積
14.69㎡建物構造
鉄筋コンクリート造(RC)
- 外観

- 間取図/区画図
本町5丁目 西新宿五丁目駅 徒歩 10分 1240万円 想定利回り(表面)5.8%
所在地
東京都渋谷区本町5丁目交通
都営大江戸線 西新宿五丁目駅 徒歩 10分間取り
1R築年月
1983年03月完成専有面積
14.69㎡建物構造
鉄筋コンクリート造(RC)| 物件名称 | メゾン・ド・タンブール |
|---|---|
| オーナーチェンジ | あり |
| 価格 | 1240万円 |
| 利回り 表面/実質 | 5.8%- |
| 想定年間収入 | 72万円 |
| 共益費・管理費 | 5,000円 |
| 修繕積立金(月額) | 8,040円 |
| 権利金/保証金 | なし/なし |
| 所在地 | 東京都渋谷区本町5丁目 |
| 交通 | 都営大江戸線 西新宿五丁目駅 徒歩 10分 |
| 土地権利 | 所有権 |
| 間取り | 1R |
| 専有面積 | 14.69㎡ |
|---|---|
| 築年月 | 1983年03月完成 |
| 建物構造 | 鉄筋コンクリート造(RC) |
| 所在階/建物階建 | 地上3階/4階建 |
| 総戸数/販売戸数 | 29戸 |
| 現況 | 賃貸中 |
| 管理 | 管理形態:全部委託 管理人状況:巡回 |
| 引渡時期 | 相談 |
| 学区 | 小中一貫教育校小学校 約0m 渋谷本町学園中学校 約512m |
| 物件情報更新日 | 2026年03月06日(物件情報更新日より14日以内に更新) |
| 物件コード | 18600 |
| 取引態様 | 仲介 |
この物件のお問い合わせ先
株式会社FIELD
お電話でのお問い合わせ
03-5362-7075
〒160-0004
東京都新宿区四谷4丁目30-13 クロスシー新宿御苑前ビル3F
- [ TEL ]
- 03-5361-6488
- [ FAX ]
- 03-5362-3621
- [ 営業時間 ]
- 10:00~20:00
- [ 定休日 ]
- 日曜、祝日
- [ アクセス ]
- 東京メトロ丸ノ内線「新宿御苑前駅」 大木戸門口 徒歩5分
- 一部、完成後1年以上を経過した未入居物件が新築物件として掲載される場合がございます。
- 敷地権利が定期借地権のものは価格に権利金を含みます。
- 完成予想図はいずれも外構、植栽、外観等実際のものとは多少異なる場合がございます。
- CG合成の画像の場合、実際とは多少異なる場合がございます。
- 図面と現況が異なる場合には現況を優先いたします。
- 地積、建物床面積、仕様に変更が生じる場合がございます。
- 物件情報は最新のものをご提供させていただきますが、万一売約済の場合はご容赦ください。
- 建築条件付土地の販売は、売買契約後一定期間内に売主との間で建築請負契約を結ぶことが条件となり、この期間内に建築請負契約が成立しない場合は、受領金を全額返済した上で土地売買契約は白紙となります。
- 掲載物件の取引態様が「仲介」「一般」「専属」「専任」となっているものは、ご成約の際に規定の手数料及びそれに係わる消費税を別途申し受けます。
- 間取り表示のSはサービスルーム(納戸)の略称です。WICはウォークインクローゼット、DENは書斎の略称です。
- 参考プランは、土地の購入者の設計プランの参考に資するための一例であって、参考プランを採用するか否かは土地購入者の自由な判断に委ねられます。


